Designs That Add Value, Not Just Style
At FlipEase Builders, LLC, design isn’t just about making things look good...it’s about making every square foot count. Whether you're flipping, renting, or living in the home, our plans are engineered with real-world ROI in mind. We blend investor instincts with thoughtful, modern layouts to deliver designs that elevate both form and function.
What We Offer
We provide a full suite of design services tailored to maximize space, flow, and resale appeal, including:
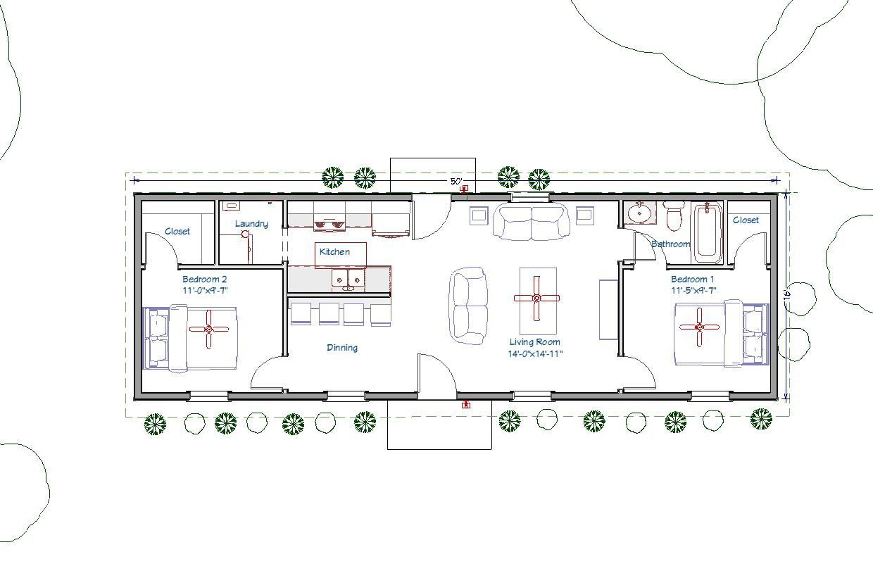
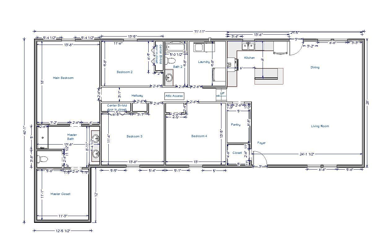
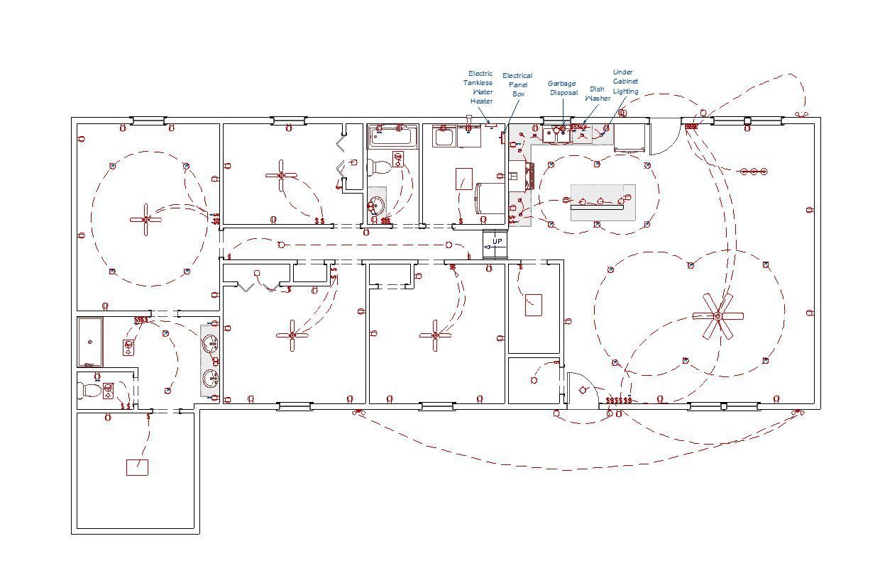
- Floor Plans & Space Reconfigurations
- Kitchen & Bathroom Layouts
- ADUs (Accessory Dwelling Units)
- Curb Appeal Enhancements
- Code-Compliant Plans
- 3D Raytracing & Visualizations
Need to reclaim unused square footage? We specialize in value-focused upgrades like attic conversions and carport or garage enclosures.
Who We Serve
Our design services are built for:
- House Flippers
- Buy-and-Hold Investors
- Homeowners
- Real Estate Agents
If you're trying to unlock potential and squeeze every dollar from your project, you’re in the right place.
Built to Collaborate
Every project starts with your vision. Whether you send us a rough sketch, a few Pinterest screenshots, or just an idea scribbled on a napkin, we’ll take it from there. We work hand-in-hand with clients on material selection, layout strategy, and 3D renderings to help bring your concept to life before the first hammer swings.
Real Designs. Real Results.
Unlike firms that chase trends, we design with resale and rental value at the forefront. Our experienced eye for market appeal and layout efficiency gives you more than just a pretty space...it gives you a better return on investment.
Need structural plans? We coordinate with trusted engineers to make sure everything we design is as solid as it is stylish.
Fast. Smart. ROI-Driven.
Design shouldn’t be the holdup; it should be the launchpad. With fast turnarounds and investor-savvy planning, FlipEase Builders, LLCdelivers designs that build equity, not just expectations.
At FlipEase Builders, LLC, we turn properties into opportunities. Based in Houston, TX, we specialize in high-quality renovations designed to add real value...whether you're flipping, renting, or simply improving your own home.
From kitchen remodels and bathroom upgrades to full layout reconfigurations and additions, our team of skilled craftsmen and design professionals brings both vision and execution to the table. We understand what makes a home sell faster, rent for more, and function better, because we’ve been on the investor side too.
With a strong focus on quality, speed, and ROI, we deliver every project on time, on budget, and to the highest standards. Whether you’re an experienced investor or a homeowner planning your first major renovation, FlipEase Builders, LLC is your trusted partner in building smart, lasting va
























